食品公司生產車間冷庫建造工程設計
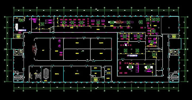
1、冷庫規模:約1300平方,有8間冷庫,其中有6間冷凍庫,冷凍庫溫度為-25~-20℃;有2間常溫庫,常溫庫溫度為15℃。含冷藏區、分揀區、打包區、研發區、操作間等。
2、建筑性質:冷庫
3、設計范圍:
冷庫的制冷、保溫、控制、照明等,以及制冷工藝、制冷機房、制冷設備安裝調試、庫房保溫施工、基礎設施等相關要求和圖紙。
4、設計依據:
《冷庫設計規范》GB150072-2021
《冷庫安全規程》GB128009-2011
《制冷設備、空氣分離設備安裝及驗收規范》GB150274-2010
《工業設備及管道絕熱施工及驗收規范》GB150185-2010
《輸送流體用無縫鋼管》GB18163-2010
《空調與制冷設備用銅管》GB1/T17791-2007
《冷庫制冷工藝設計手冊》ISB1N109-0116-X/TH66
《制冷和供熱用機械制冷系統安全要求》GB19237-2001
《組合冷庫用隔熱夾芯板》JB1/T6527-2006
《建筑設計防火規范》GB150316-2006
《通用電設備配電設計規范》GB150055-2011
《采暖通風與空氣調節設計規范》GB150019-2003
(制冷設備及管道布局圖)
(冷庫庫房分區)
